工具関係の商品の価格比較などを行っています

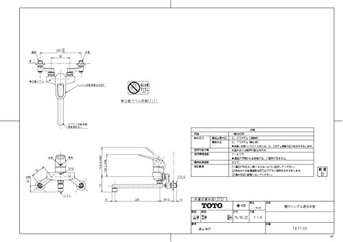
【取替交換付き(宮城県)】 TOTO キッチン用水栓 壁付き TKY130(TMG)

メーカー
TOTO
JAN
TKY130
メーカー品番
TKY130
この商品のレビュー
Amazonでのレビュー
シェア

特記事項

  • 取替交換付き商品となります。(対応エリアは宮城県の一部)
  • スパウト(吐水パイプ)長さ:22cm 取り付け幅10.5~22.5cm対応
  • 整流キャップ部 W22山20
  • 壁付き シングルレバー混合栓
  • リングハンドル:指を引っかけられるので、濡れた手でも操作しやすい。

価格ランキング

価格情報を取得することができませんでした。
下記のリンクより、キーワードなどでお探しいただけますでしょうか。